無人内見受付中

NEWS

最新情報

【新規分譲スタート】久留米市荒木町に全2邸 誕生

久留米市荒木町に、長期優良住宅の新築2邸が誕生いたします。

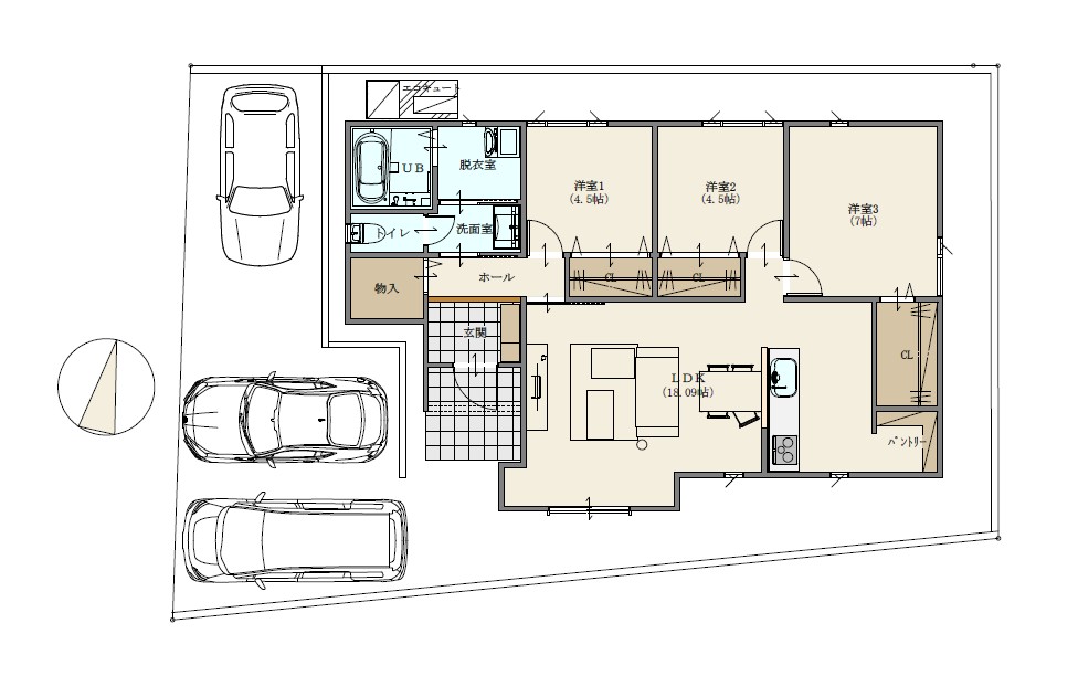
1号地/2階建て

ゆとりある収納と動線設計で、家族の暮らしにフィットする2階建て

2号地/平屋

ワンフロアで完結する人気の平屋。日々の暮らしをスムーズに。


荒木鷲塚公園へ徒歩約5分(約350m)

季節の移ろいを身近に感じられる、自然豊かな環境。
のびのび暮らせて、日々の生活も快適なロケーションです。

小中学校が徒歩圏内で、
子育て世帯にも安心の教育環境が整っています。

  • 荒木小学校 … 約750m/徒歩約10分
  • 荒木中学校 … 約800m/徒歩約10分

毎日の通学も安心、のびのびと子育てできるロケーションです。

現在、分譲開始に伴い
資料請求・現地案内の受付をスタートいたしました。

完成前の今だからこそ、
間取り・仕様のご相談や、先行見学予約がおすすめです。

気になられた方は、ぜひお気軽にお問い合わせください。
数に限りがあるため、お早めのご検討をおすすめいたします。


来場予約はこちら

資料請求はこちら