TRESTAGE FOCUS

THE SMART PRICE NEW YEAR 2026

物件写真

トレステージ
高良内町
[3号地]

物件写真

トレステージ
高良内町
[4号地]

物件写真

トレステージ
上津南
[5号地]

物件写真

トレステージ
上津南
[6号地]

物件写真

トレステージ
中広川小学校東
[1号地]

物件写真

トレステージ
中広川小学校東
[2号地]

“3,000万円以下のスタイルモダン”

美しいデザインと、快適な暮らし。その両方を求める方へ。
3,000万円以下の枠を超えた質感と洗練が、
住まいの印象を大きく変えていきます。
スタイルモダンの魅力を凝縮し、
手の届く価格で実現した価値ある住まいを限定公開します。

KOURAUCHIMACHI

3
号地

3LDK
+駐車場2台

販売価格
2,988(税込)
万円

土地面積/179.88㎡(54.41坪) 建物面積/88.60㎡(26.80坪)
1F平屋/88.60㎡ (26.80坪)

所在地/福岡県久留米市高良内町字村下4433-9

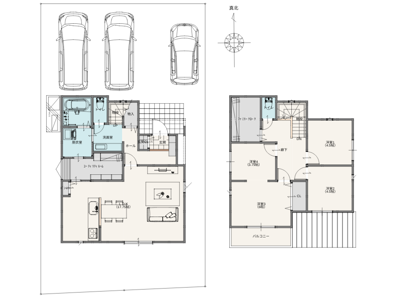
家族の今と、これからの暮らしを一番に考えた、柔軟で家事ラクな住まい。

図面
  1. POINT 1

    階段のないワンフロア設計で、家事動線も移動もスムーズ。家族の気配を感じながら、毎日を快適に過ごせる平屋の住まいです。

  2. POINT 2

    玄関収納やウォークインクローゼット、パントリーなど、各所に収納を配置。家族の荷物が増えてもすっきりを保てる安心設計です。

  3. POINT 3

    キッチンから洗面・浴室へとスムーズにアクセスできる設計で、料理や洗濯などの“ながら家事”もラクにこなせます。

物件の詳細はこちら

KOURAUCHIMACHI


号地

3LDK
+駐車場2台

販売価格
2998(税込)
万円

土地面積/181.27㎡(54.83坪) 建物面積/87.36㎡(26.42坪)
1F平屋/87.36㎡ (26.42坪)

所在地/福岡県久留米市高良内町字村下4433-9

家族の今と、これからの暮らしを一番に考えた、柔軟で家事ラクな住まい。

図面
  1. POINT 1

    階段のないワンフロア設計で、家事動線も移動もスムーズ。家族の気配を感じながら、毎日を快適に過ごせる平屋の住まいです。

  2. POINT 2

    玄関収納やウォークインクローゼット、パントリーなど各所にゆとりの収納を配置。帰宅後は荷物を置いてそのまま洗面室へ向かえる、暮らしやすい動線設計です。

  3. POINT 3

    キッチンから洗面・浴室へとスムーズにアクセスできる設計で、料理や洗濯などの“ながら家事”もラクにこなせます。

物件の詳細はこちら

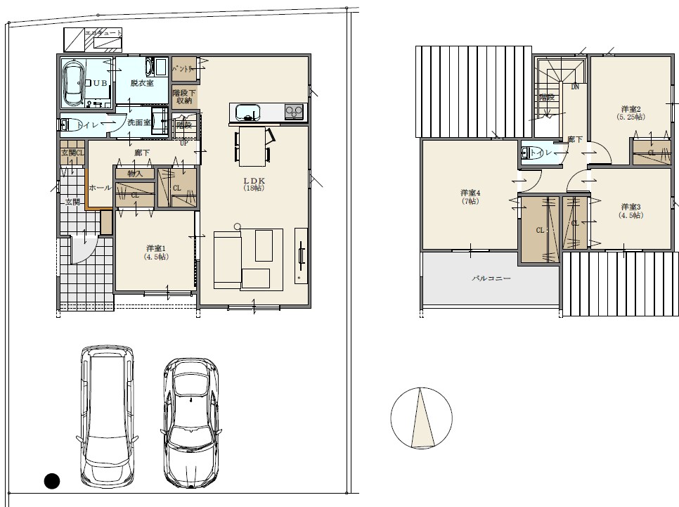
KAMITSUMINAMI

5
号地

3LDK
+駐車場3台

販売価格
2,988(税込)
万円

土地面積/166.06㎡(50.23坪) 建物面積/104.03㎡(31.46坪)

所在地/福岡県久留米市藤山町1768-7他

家族の今と、これからの暮らしを一番に考えた、柔軟で家事ラクな住まい。

図面
  1. POINT 1

    ユーティリティルームで家事が一か所で完結。洗濯“する・干す・しまう”の動作がここで完結できる広めのユーティリティ。
    屋外への動線も短く、毎日の家事が時短になる人気の間取り。

  2. POINT 2

    成長とともに増える衣類や学校用品も、家族で共有できるファミリークロークが2階にあることで、整理整頓しやすい住環境を保てます。

  3. POINT 3

    3台ゆとりをもって駐車できる広々スペース。来客時・将来車が増えたときも安心です。

物件の詳細はこちら

KAMITSUMINAMI

6
号地

4LDK
+駐車場2台

販売価格
2,998(税込)
万円

土地面積/166.00㎡(50.21坪) 建物面積/105.35㎡(31.86坪)
1F/60.13㎡ (18.18坪) 2F/45.22㎡ (13.67坪)

所在地/福岡県久留米市藤山町1768-7他

一階居室付き。将来まで暮らしやすい4LDKの住まい

図面
  1. POINT 1

    1階に6帖の洋室を配置。主寝室にしたりゲストルームやテレワーク・書斎スペースにも。ライフスタイルに合わせて柔軟に対応できます。

  2. POINT 2

    洗面室が玄関に近いことで、帰宅後は荷物を置いてそのまま洗面室へ向かえる、暮らしやすい動線設計です。

  3. POINT 3

    最大3台駐車できるスペースを確保。来客時も安心です。

物件の詳細はこちら

NAKAHIROKAWASYOUGAKKOUHIGASHI

1
号地

3LDK
+駐車場3台

販売価格
2968(税込)
万円

土地面積/192.44㎡((58.21坪) 建物面積/93.16㎡(28.18坪)
平屋/93.16㎡(28.18坪)

所在地/

動線・収納・開放感。暮らしを設計した平屋

図面
  1. POINT 1

    洗面室のすぐ隣にファミリークロークを配置。
    「脱ぐ→洗う→しまう」が最短距離で完結し、忙しい朝も家事がスムーズに進む動線設計。

  2. POINT 2

    20帖超のLDKに、隣接する和室をプラス。
    実際の帖数以上に広く感じる、開放感のあるリビング空間。

  3. POINT 3

    全居室クローゼットに加え、主寝室のWIC、玄関の土間収納まで完備。
    生活感を出さずに暮らせる、収納量重視の実用的な間取り

物件の詳細はこちら

NAKAHIROKAWASYOUGAKKOUHIGASHI

2
号地

3LDK
+ 駐車場3台

販売価格
2998(税込)
万円

土地面積/192.48㎡(58.22坪)建物面積/94.81㎡(28.68坪)
1F/94.81㎡(28.68坪)

所在地/

家事ラク動線を考え抜いた間取りと豊富な収納スペースが魅力の平屋

図面
  1. POINT 1

    キッチンをぐるっと回れる回遊動線で、
    配膳・片付け・移動がスムーズに完結するストレスフリー設計。

  2. POINT 2

    LDKから洗面・脱衣室までを近くにまとめ、
    料理・洗濯・身支度が同時進行しやすい家事ラク動線。

  3. POINT 3

    パントリーやWIC、各居室収納を確保。
    アイランドキッチンでも散らかと思わせない、収納力のある間取り

物件の詳細はこちら

土地・設計・品質を貫く、
トレステージの3つの軸

  1. 01
    自信のある土地を
    厳選し仕入れ

    土地もトレステージブランドでありたい。

    トレステージの土地は、暮らしを支える“確かな土台”でありたい。
    川崎ハウジングでは、幹線道路へのアクセス、ハザード確認、
    の質など、立地条件を徹底的に吟味しています。
    さらに、自社によるSWS 試験で住宅に適した地盤かを検証し、
    豊富な経験で“目利き”した土地のみを厳選。
    第三者機関の品質保証を加え、安心して選べる土地としてご提供しています。

  2. 02
    設計士の想いを描く
    邸別設計

    唯一無二の価値をつくること。

    トレステージは「夢を形にする住まい」を追求し、
    設計士が情熱を注いで創り上げています。
    自由設計だからこそ豊かな発想を活かせるよう、
    1区画50坪以上というゆとりある敷地基準を設定。
    空間を最大限に活かす収納計画にもこだわり、
    「収納が多くて暮らしやすい」という声が私たちの誇りです。

  3. 03
    数字で見える信頼
    「長期優良住宅」

    末永い安心と経済的なメリットをお客さまへ。

    住まいは、20年後も30年後も愛着を重ねていくもの。
    だからこそ、心地よさと安心性能の両立が欠かせないと私たちは考えています。
    見えない構造部分まで信頼いただけるよう、
    全邸で長期優良住宅を取得。耐震・断熱・耐火性能にもこだわり、
    安心はもちろん、省エネや維持費の軽減といった
    経済的メリットも備えた住まいをお届けしています。

Reservation

*必須

ドメイン設定(受信拒否設定)をされているお客様へのお願いドメイン設定(受信拒否設定)をされているお客様の場合、弊社からお送りする確認メールや、資料を添付したメールをお送りする事ができません。 ドメイン設定を解除して頂くか、又は弊社ドメイン『@kawasaki-nc.jp』を受信リストに加えていただきますよう、お願い申し上げます。 お手数をお掛けしますが、ご対応よろしくお願い致します。
個人情報の取り扱いについて
株式会社川﨑ハウジング(以下、「当社」といいます)は、当社業務に関連し、その活動を行うために多くの個人情報を保有するものであるところ、個人情報の保護が重大な責務と考え、情報主体をはじめ広く社会からの信頼を得るために、以下のとおり個人情報保護方針を定め、個人情報の保護に努めます。なお、本基本方針については、当社のインターネットのホームページ、会社案内等に掲載することにより、いつでも閲覧可能な状態にするものとします。当社は、個人情報について、関係法令その他の規範及び当社策定にかかる各種規程等の定めるところに従い、当社において業務に従事する全てのものに対してその周知・徹底を図り、適切にこれを取り扱います。1. 個人情報の適切な収集、利用、提供、委託個人情報の収集にあたっては、利用目的を明示した上で、必要な範囲の情報を収集し、利用目的を通知または公表し、その範囲内で利用します。収集した個人情報は、次の場合を除き、第三者に提供または開示することはしません。あらかじめ本人の同意を得た場合個人情報保護の保護に関する法律第23条第2項(オブアウト)ないし同第3項(共同利用)の方法による場合法令等の規定に従い、提供または開示する場合個人情報を第三者に委託して利用する場合は、当該第三者における安全管理措置の状況等に照らし、委託を行うことの適切性を検討すると共に、当該第三者との間で秘密保持契約を締結した上で提供するなどし、委託先への適切な監督をします。2. 個人情報の安全管理措置個人情報への不正アクセス、個人情報の漏えい、滅失、または毀損の予防及び是正のため、当社内において規程を整備し安全対策に努めます。3. 改善措置個人情報の取扱いに関する社会環境の変化に的確に対応するよう努めます。また必要に応じて本方針をはじめ各種規程等につき、変更、修正、または追加を行うなど、改善をするよう努めます。4. 開示、訂正請求等への対応当社が本個人情報保護方針を遵守していないと思われる場合、及び本人の個人情報の開示、訂正、追加または削除、利用停止などを希望される場合には、こちら(電話 096-345-5811業務管理課)までお問い合せください。合理的な期間、妥当な範囲内でこれに対応いたします。5. 苦情の処理当社は個人情報取扱に関する苦情に対し、適切かつ迅速な処理に努めます。