TRESTAGE FOCUS

THE SMART PRICE NEW YEAR 2026

物件写真

トレステージ
青陵中学校西
[2号地]

物件写真

トレステージ
東国分小学校南
[1号地]

物件写真

トレステージ
野伏間
[3号地]

物件写真

トレステージ
附属小学校前
[2号地]

物件写真

トレステージ
荒木鷲塚公園前
[2号地]

物件写真

トレステージ
高良内町
[3号地]

物件写真

トレステージ
小森野小学校西
[2号地]

物件写真

トレステージ
中広川小学校東
[1号地]

物件写真

トレステージ
中広川小学校東
[2号地]

物件写真

トレステージ
筑後小学校南
[4号地]

“「平屋に住む、美しい生き方」特集”

空間に余白が生まれると、暮らしは静かに豊かになる。
一続きの動線が紡ぐ心地よさと、自然と調和する深い寛ぎ。
平屋は、美意識を住まいに昇華させる、洗練の形です。
今回、その平屋の魅力を“手の届く価格”で、限定してご紹介します。

SEIRYOUTYUUGAKKOUNISHI

2
号地

3LDK

販売価格
3,088(税込)
万円

土地面積/198.35㎡(60坪) 建物面積/92.29㎡(27.91坪)
1F/92.29㎡(27.91坪)

所在地/福岡県久留米市藤山町1768-15

“しまう・つながる・くつろぐ”が整った、暮らしやすい住まい。

図面
  1. POINT 1

    家の中心には21帖の広々としたLDKを配置。キッチンからリビング・ダイニングを見渡せる設計で、家族の気配を感じながら過ごせる開放的な空間です。

  2. POINT 2

    キッチン横には便利なパントリーを設置。さらにホール側にはファミリークローゼットがあり、日用品の収納や家族の衣類管理がしやすい効率的な収納計画になっています。

  3. POINT 3

    各居室にクローゼットを設け、さらに主寝室にはウォークインクローゼットを配置。家族それぞれの荷物をしっかり収納できる、整理しやすい住まいです。

物件の詳細はこちら

HIGASHIKOKUBUSYOUGAKKOUMINAMI

1
号地

3LDK

販売価格
3,858(税込)
万円

土地面積/229.22㎡(69.33坪) 建物面積/95.23㎡(28.8坪)
1F/95.23㎡(28.8坪)

所在地/福岡県久留米市国分町1209-13

毎日の家事を、もっとスムーズに。 回遊収納動線のある快適な住まい

図面
  1. POINT 1

    LDKは約20.25帖のゆとりある空間。さらに隣接するマルチルーム(3.75帖)を開ければ、より広々とした一体空間として使えます。お子さまの遊び場やワークスペースとしても活躍します。

  2. POINT 2

    洋室1・洋室2はあえて壁を設けず広々と使える設計。お子さまの成長やライフスタイルに合わせて、将来2部屋に分けることも可能です。

  3. POINT 3

    ホールから使えるファミリークローゼットを設置。家族みんなの衣類や日用品をまとめて収納できるため、片付けや身支度がスムーズです。

物件の詳細はこちら

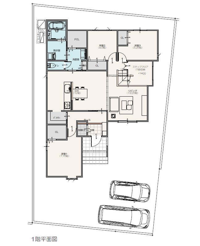
NOBUSUMA

3
号地

3LDK
+駐車場3台

販売価格
3,598(税込)
万円

土地面積/234.08㎡(70.80坪) 建物面積/98.93㎡(29.92坪)
1F/98.93㎡(29.92坪)

所在地/福岡県久留米市野伏間一丁目1480-16

スキップフロアと大収納が生む、ゆとりの平屋

図面
  1. POINT 1

    リビングの一角にスキップフロアを設け、空間に立体感をプラス。お子さまの勉強スペースや在宅ワークにも使える「こもれる居場所」で、平屋ながら奥行きのある暮らしを実現します。

  2. POINT 2

    キッチン横に大容量のウォークインパントリーを配置。食材や日用品をたっぷり収納できるうえ、買い置きもしやすく家事効率がぐんとアップ。生活感を見せない“すっきりキッチン”を叶えます。

  3. POINT 3

    7.5帖の主寝室は玄関ホールの奥に配置し、リビングや子ども部屋から程よく距離を確保。
    夫婦それぞれの時間を大切にできる、静かなプライベート空間です。

物件の詳細はこちら

FUZOKUSHOGAKKOUMAE

2
号地

3LDK
+駐車場3台

販売価格
4,088(税込)
万円

土地面積/166.36㎡(50.32坪) 建物面積/84.48㎡(25.55坪)
1F/84.48㎡(25.55坪)

所在地/福岡県久留米市西町123-34他

「ただいま」から始まる、家事動線のいい暮らし。

図面
  1. POINT 1

    勾配天井で開放感あるリビング。リビングは天井が高く、光が入りやすい設計で、空間がより広く感じられます。

  2. POINT 2

    断熱性能等級6を取得。夏は涼しく、冬はあたたかい快適な住まいです。

  3. POINT 3

    キッチン→脱衣室→洗面室→リビングと、ぐるっと回れる回遊設計。毎日の家事効率がグッとアップ。
    さらに、各所に大容量の収納を確保。LDKにはファミリークロークを完備。使いやすさと片付けやすさを両立しています。

物件の詳細はこちら

ARAKIWASHIZUKAKOENNMAE

2
号地

3LDK
+駐車場3台

販売価格
2,998(税込)
万円

土地面積/180.07㎡(54.47坪) 建物面積/82.32㎡(24.9坪)
1F/82.32㎡ (24.9坪)

所在地/福岡県久留米市荒木町荒木561-63

コンパクトにまとまる動線と、駐車3台の安心感を備えた平屋。

図面
  1. POINT 1

    玄関から洗面室・脱衣室・キッチンへとスムーズにつながる家事動線。
    「洗う・干す・しまう・使う」が一直線で完結し、毎日の家事時間を短縮。

  2. POINT 2

    LDK横にタタミスペース。
    家事中も子どもを見守れて、多目的に使える便利空間。

  3. POINT 3

    物入・CLしっかり確保。
    「置き場に困る…」を解決し、生活感を抑えた空間に。

物件の詳細はこちら

KOURAUCHIMACHI

3
号地

3LDK

販売価格
2,998(税込)
万円

土地面積/179.88㎡(54.41坪) 建物面積/88.60㎡(26.80坪)
1F平屋/88.60㎡ (26.80坪)

所在地/福岡県久留米市高良内町字村下4433-9

家族の今と、これからの暮らしを一番に考えた、柔軟で家事ラクな住まい。

図面
  1. POINT 1

    階段のないワンフロア設計で、家事動線も移動もスムーズ。家族の気配を感じながら、毎日を快適に過ごせる平屋の住まいです。

  2. POINT 2

    玄関収納やウォークインクローゼット、パントリーなど、各所に収納を配置。家族の荷物が増えてもすっきりを保てる安心設計です。

  3. POINT 3

    キッチンから洗面・浴室へとスムーズにアクセスできる設計で、料理や洗濯などの“ながら家事”もラクにこなせます。

物件の詳細はこちら

KOMORINOSHOGAKKOUNISHI

2
号地

3LDK
+駐車場4台

販売価格
4,088(税込)
万円

土地面積/213.34㎡(64.53坪) 建物面積/90.26㎡(27.3坪)
1F/90.26㎡(27.3坪)

所在地/福岡県久留米市小森野3丁目196-2

断熱等級6 × 太陽光4.45kW搭載。快適も節約も叶える平屋の家。

図面
  1. POINT 1

    効率的な家事動線と充実の収納。洗面・浴室・トイレが一直線にまとまり、使いやすさ抜群。さらに廊下や洋室に収納をしっかり確保。

  2. POINT 2

    3つの洋室でライフスタイルに対応。6.5帖・5.2帖・4.5帖の洋室を配置。主寝室+子ども部屋や書斎など、暮らしに合わせて使い分けできる設計。

  3. POINT 3

    断熱等級6 × 太陽光4.45kW搭載。夏は涼しく冬はあたたかい。光熱費を賢く抑え、快適も節約も叶える平屋の家。

物件の詳細はこちら

NAKAHIROKAWASHOUGAKKOUHIGASHI

1
号地

3LDK
+駐車場3大

販売価格
2968(税込)
万円

土地面積/192.44㎡(58.21坪) 建物面積/93.16㎡(28.18坪)
1F/93.16㎡(28.18坪)

所在地/福岡県八女郡広川町大字久泉958-5

動線・収納・開放感。暮らしを設計した平屋

図面
  1. POINT 1

    洗面室のすぐ隣にファミリークロークを配置。
    「脱ぐ→洗う→しまう」が最短距離で完結し、忙しい朝も家事がスムーズに進む動線設計。

  2. POINT 2

    20帖超のLDKに、隣接する和室をプラス。
    実際の帖数以上に広く感じる、開放感のあるリビング空間。

  3. POINT 3

    全居室クローゼットに加え、主寝室のWIC、玄関の土間収納まで完備。
    生活感を出さずに暮らせる、収納量重視の実用的な間取り。

物件の詳細はこちら

NAKAHIROKAWASHOUGAKKOUHIGASHI

2
号地

3LDK
+駐車場3大

販売価格
2968(税込)
万円

土地面積/192.48㎡(58.22坪) 建物面積/94.81㎡(28.68坪)
1F/94.81㎡(28.68坪)

所在地/福岡県八女郡広川町大字久泉958-5

家事ラク動線を考え抜いた間取りと豊富な収納スペースが魅力の平屋

図面
  1. POINT 1

    キッチンをぐるっと回れる回遊動線で、
    配膳・片付け・移動がスムーズに完結するストレスフリー設計。

  2. POINT 2

    LDKから洗面・脱衣室までを近くにまとめ、
    料理・洗濯・身支度が同時進行しやすい家事ラク動線。

  3. POINT 3

    パントリーやWIC、各居室収納を確保。
    アイランドキッチンでも散らかと思わせない、収納力のある間取り

物件の詳細はこちら

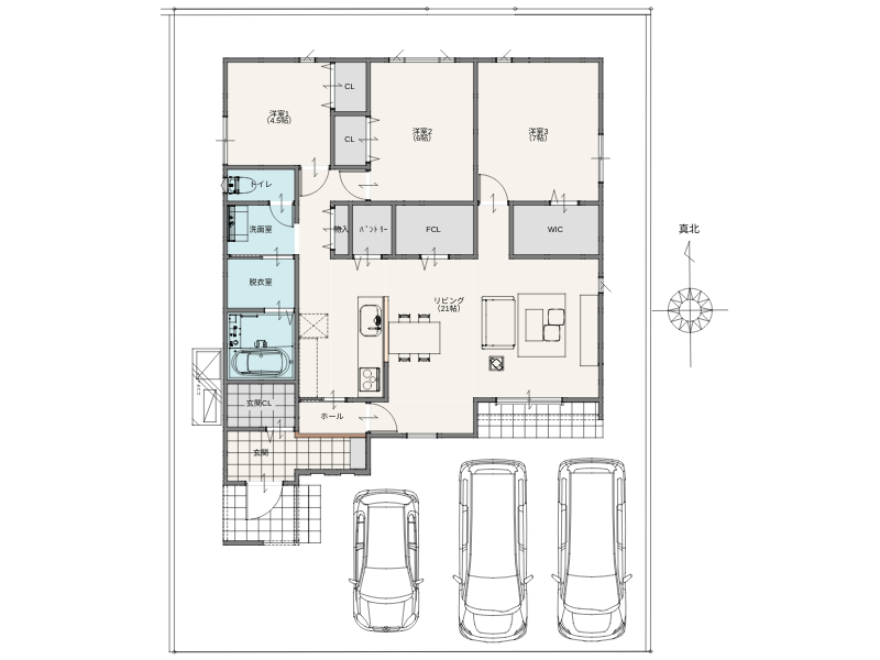
CHIKUGO SHOUGAKKOU MINAMI

4
号地

3LDK
駐車場3台

販売価格
3058万円(税込)
万円

土地面積/197.81㎡(59.83坪) 建物面積/90.67㎡(27.42坪)
1F/90.67㎡ (27.42坪)

所在地/福岡県筑後市大字長浜1048-11

動線・収納・開放感。暮らしを設計した平屋

図面
  1. POINT 1

    南面に大きく開いたLDKは21.5帖の広さ。
    テラスとつながることで、実際の広さ以上の開放感と外との一体感を演出。

  2. POINT 2

    洗面・脱衣・浴室がまとまり、すぐ隣にファミリークローゼットを配置。
    「洗う→干す→しまう」が一ヶ所で完結する、効率重視の動線設計。

  3. POINT 3

    ゆとりの駐車3台スペースで来客時も安心。
    さらに長期優良住宅認定により、耐震性・断熱性・将来の資産価値までしっかり確保。

物件の詳細はこちら

土地・設計・品質を貫く、
トレステージの3つの軸

  1. 01
    自信のある土地を
    厳選し仕入れ

    土地もトレステージブランドでありたい。

    トレステージの土地は、暮らしを支える“確かな土台”でありたい。
    川崎ハウジングでは、幹線道路へのアクセス、ハザード確認、
    の質など、立地条件を徹底的に吟味しています。
    さらに、自社によるSWS 試験で住宅に適した地盤かを検証し、
    豊富な経験で“目利き”した土地のみを厳選。
    第三者機関の品質保証を加え、安心して選べる土地としてご提供しています。

  2. 02
    設計士の想いを描く
    邸別設計

    唯一無二の価値をつくること。

    トレステージは「夢を形にする住まい」を追求し、
    設計士が情熱を注いで創り上げています。
    自由設計だからこそ豊かな発想を活かせるよう、
    1区画50坪以上というゆとりある敷地基準を設定。
    空間を最大限に活かす収納計画にもこだわり、
    「収納が多くて暮らしやすい」という声が私たちの誇りです。

  3. 03
    数字で見える信頼
    「長期優良住宅」

    末永い安心と経済的なメリットをお客さまへ。

    住まいは、20年後も30年後も愛着を重ねていくもの。
    だからこそ、心地よさと安心性能の両立が欠かせないと私たちは考えています。
    見えない構造部分まで信頼いただけるよう、
    全邸で長期優良住宅を取得。耐震・断熱・耐火性能にもこだわり、
    安心はもちろん、省エネや維持費の軽減といった
    経済的メリットも備えた住まいをお届けしています。

Reservation

*必須

ドメイン設定(受信拒否設定)をされているお客様へのお願いドメイン設定(受信拒否設定)をされているお客様の場合、弊社からお送りする確認メールや、資料を添付したメールをお送りする事ができません。 ドメイン設定を解除して頂くか、又は弊社ドメイン『@kawasaki-nc.jp』を受信リストに加えていただきますよう、お願い申し上げます。 お手数をお掛けしますが、ご対応よろしくお願い致します。
個人情報の取り扱いについて
株式会社川﨑ハウジング(以下、「当社」といいます)は、当社業務に関連し、その活動を行うために多くの個人情報を保有するものであるところ、個人情報の保護が重大な責務と考え、情報主体をはじめ広く社会からの信頼を得るために、以下のとおり個人情報保護方針を定め、個人情報の保護に努めます。なお、本基本方針については、当社のインターネットのホームページ、会社案内等に掲載することにより、いつでも閲覧可能な状態にするものとします。当社は、個人情報について、関係法令その他の規範及び当社策定にかかる各種規程等の定めるところに従い、当社において業務に従事する全てのものに対してその周知・徹底を図り、適切にこれを取り扱います。1. 個人情報の適切な収集、利用、提供、委託個人情報の収集にあたっては、利用目的を明示した上で、必要な範囲の情報を収集し、利用目的を通知または公表し、その範囲内で利用します。収集した個人情報は、次の場合を除き、第三者に提供または開示することはしません。あらかじめ本人の同意を得た場合個人情報保護の保護に関する法律第23条第2項(オブアウト)ないし同第3項(共同利用)の方法による場合法令等の規定に従い、提供または開示する場合個人情報を第三者に委託して利用する場合は、当該第三者における安全管理措置の状況等に照らし、委託を行うことの適切性を検討すると共に、当該第三者との間で秘密保持契約を締結した上で提供するなどし、委託先への適切な監督をします。2. 個人情報の安全管理措置個人情報への不正アクセス、個人情報の漏えい、滅失、または毀損の予防及び是正のため、当社内において規程を整備し安全対策に努めます。3. 改善措置個人情報の取扱いに関する社会環境の変化に的確に対応するよう努めます。また必要に応じて本方針をはじめ各種規程等につき、変更、修正、または追加を行うなど、改善をするよう努めます。4. 開示、訂正請求等への対応当社が本個人情報保護方針を遵守していないと思われる場合、及び本人の個人情報の開示、訂正、追加または削除、利用停止などを希望される場合には、こちら(電話 096-345-5811業務管理課)までお問い合せください。合理的な期間、妥当な範囲内でこれに対応いたします。5. 苦情の処理当社は個人情報取扱に関する苦情に対し、適切かつ迅速な処理に努めます。