TRESTAGE
EDOYASHIKI
Plan
無人内見受付中
資料請求
来場予約
受付中
TOP
Plan
区画図・間取り
Location
ロケーション
Design & Innovation
トレステージの魅力
Photo Gallery
フォトギャラリー
Town Planning
街づくり
資料請求
来場予約
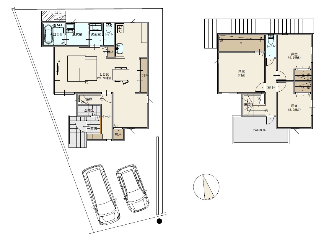
区画図
間取り
家族の時間と個の時間を両立する住まい
土地面積 / 建物面積 / 販売価格
MODEL HOUSE
1
号地
3LDK
+
駐車場2台
土地面積
143.58㎡(43.43坪)
建物面積
103.87㎡(31.42坪)
1F
58.33㎡(17.65坪)
2F
45.54㎡(13.77坪)
■販売価格 (税込) / 33,880,000円(土地+建物+外構)
“暮らしやすさ”を追求した動線設計。家族が快適に過ごせる住まい。
POINT
1
広々LDK21.9帖+パントリー付き
家族が自然と集まる大空間LDK。パントリーも備え、生活感を隠した収納上手な暮らしが叶います。
POINT
2
水回りがまとまった効率的な家事動線
洗面・脱衣・浴室・キッチンが直線的に配置され、毎日の家事や身支度がスムーズ。
POINT
3
2階に3部屋+バルコニー付き
主寝室7帖に加え、5.25帖の洋室2部屋。プライバシーを大切にしながらも、家族の成長に合わせて使い分けできます。
長期
優良住宅
エコキュート付
オール電化住宅
汚れを落とす
光セラの外壁
エアコン1台
レースカーテン
(1Fのみ)
電動シャッター
雨戸(1か所)
食器洗い
乾燥機
玄関
電子錠
■「トレステージ江戸屋敷」物件概要 ●所在地/福岡県久留米市江戸屋敷2丁目1000-3 ●交通/西鉄バス藤光1丁目徒歩5分 ●地目/宅地 ●用途地域/第一種中高層住居専用地域●建ぺい率/60% ●容積率/200% ●道路幅員/南側(公道):幅員6m ●雨水/側溝排水 ●電気/九州電力●上下水道/公営上下水道 ●総区画数/1区画 ●販売戸数/新築一戸建:1戸 ●土地面積/143.58㎡●建物面積/103.87㎡●販売価格/3388万円 ●完成時期/即入居可 ●取引態様/売主
SNS
VIEW ALL
Room Tour
VIEW ALL
CONTACT
物件に関するお問い合わせは
川﨑ハウジング 久留米支店
0120-958-522
営業時間:午前9:00〜午後6:00
資料請求
来場予約