区画図
間取り
一邸一邸の個性的なデザインが調和する
美しくモダンなコミュニティの誕生です。
美しくモダンなコミュニティの誕生です。

土地面積 / 建物面積 / 販売価格


MODEL HOUSE
- 1号地
- 2号地
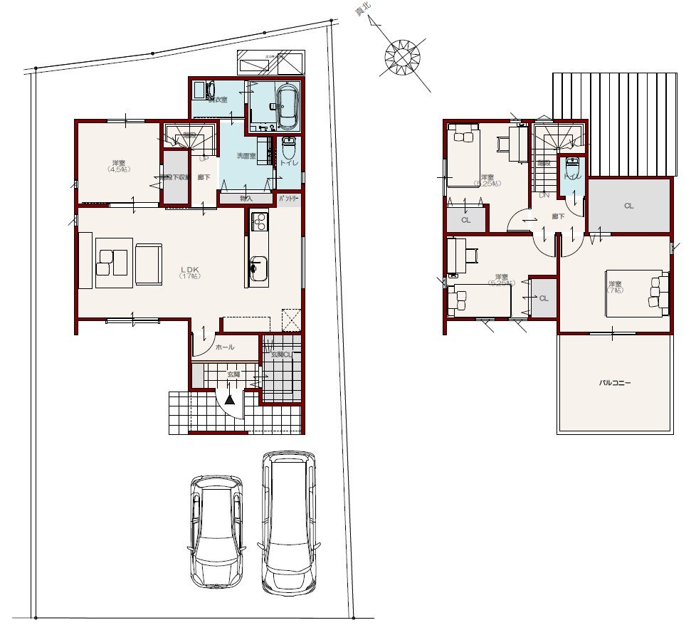
1 号地
4LDK
+
駐車場3台
駐車場3台
- 土地面積
- 180.79㎡(54.68坪)
- 建物面積
- 103.30㎡(31.24坪)
- 1F
- 60.24㎡(18.22坪)
- 2F
- 43.06㎡(13.02坪)
■販売価格 (税込) / 32,480,000円(土地+建物+外構)
暮らしに合わせて広がる空間設計と、家事ラク動線が魅力の住まい。
-
POINT1
- 家事動線がスムーズな水回り配置
洗面室・浴室・トイレがまとまっており、キッチンからのアクセスも近く家事効率が高い設計。
-
POINT2
- LDK+隣接洋室の一体感
17帖のLDKに隣接する4.5帖の洋室。扉を開ければ広々リビング空間に、閉めれば独立した個室にもなる柔軟な使い方が可能。
-
POINT3
- 大容量収納&バルコニー
2階は3部屋に加え、各部屋に収納を完備。南面の大きなバルコニーは洗濯や家族時間に大活躍
- 長期
優良住宅 - 省令
準耐火構造 - 汚れを落とす
光セラの外壁 - 電動シャッター
雨戸(1か所) - 食器洗い
乾燥機 - 玄関
電子錠
2 号地
3LDK
+
駐車場3台
駐車場3台
- 土地面積
- 189.21㎡(57.23坪)
- 建物面積
- 107.23㎡(32.43坪)
- 1F
- 60.45㎡18.28坪)
- 2F
- 46.78㎡(14.15坪)
■販売価格 (税込) / 32,580,000円(土地+建物+外構)
アイランドキッチン中心の家事ラク動線の家

-
POINT1
- 必ずリビングを通って2階の自室へ。外出・帰宅時も家族の顔が見えて安心です。
-
POINT2
- 1階に玄関クローゼット、階段下収納、パントリー。2階には各居室クローゼットも完備。収納たっぷりで室内はスッキリ。
-
POINT3
- 洗面室→脱衣室→浴室へスムーズな家事動線。キッチンからもすぐに水まわりにアクセスでき、無駄な動きが少なく家事がスムーズに進みます。
- 長期
優良住宅 - 太陽光発電搭載の
ZEHの家 - 汚れを落とす
光セラの外壁 - 電動シャッター
雨戸(1か所) - 食器洗い
乾燥機 - 玄関
電子錠
- 1号地
- 2号地
CONTACT
物件に関するお問い合わせは
川﨑ハウジング 久留米支店
営業時間:午前9:00〜午後6:00