区画図
間取り
土地面積 / 建物面積 / 販売価格


MODEL HOUSE
- 1号地
- 2号地
- 5号地
- 6号地
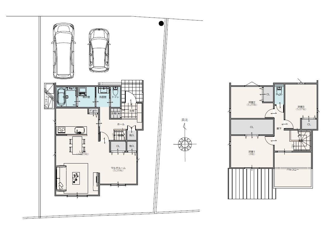
1 号地
3LDK
+
駐車場3台
駐車場3台
- 土地面積
- 198.4㎡(60.01坪)
- 建物面積
- 95.76㎡(28.96坪)
- 1F
- 95.76㎡(28.96坪)
■販売価格 (税込) / 31,480,000円(税込)
動きやすさが心地よい、アイランドキッチンのある暮らし。
-
POINT1
- キッチンを中心に、洗面・脱衣・各居室へスムーズにつながる“無駄ゼロ動線”。
-
POINT2
- リビング横に広いファミリークローゼットを配置。服・季節家電・日用品まで“家中のモノがここで完結”。
-
POINT3
- アイランドを中心に、ダイニング・リビングを一望できる配置。家族の会話が増え、いつでも見守りやすいLDK空間。
- 長期
優良住宅 - エコキュート付
オール電化住宅 - 汚れを落とす
光セラの外壁 - エアコン1台
レールカーテン
(1Fのみ) - 電動シャッター
雨戸(1か所) - 食器洗い
乾燥機 - 玄関
電子錠
2 号地
3LDK
+
駐車場3台
駐車場3台
- 土地面積
- 198.35㎡(60.00坪)
- 建物面積
- 92.29㎡(27.91坪)
- 1F
- 92.29㎡(27.91坪)
■販売価格 (税込) / 30,880,000円(税込)
5 号地
4LDK
+
駐車場3台
駐車場3台
- 土地面積
- 166.06㎡(50.23坪)
- 建物面積
- 104.03㎡(31.46坪)
- 1F
- 55.33㎡(16.73坪)
- 2F
- 48.70㎡(14.73坪)
■販売価格 (税込) / 29,480,000円(税込)
-
POINT1
- ユーティリティルームで家事が一か所で完結
洗濯“する・干す・しまう”の動作がここで完結。屋外への動線も短く、毎日の家事が時短になる人気の間取り。
-
POINT2
- 家族分の衣類・日用品をまとめて収納できる大容量FCL。
-
POINT3
- 3台ゆとりをもって駐車できる広々スペース
来客時・将来車が増えたときも安心。並列駐車できる配置で出し入れがスムーズ。
- 長期
優良住宅 - エコキュート付
オール電化住宅 - 汚れを落とす
光セラの外壁 - エアコン1台
レールカーテン
(1Fのみ) - 電動シャッター
雨戸(2か所)
- 食器洗い
乾燥機 - 玄関
電子錠
6 号地
4LDK
+
駐車場3台
駐車場3台
- 土地面積
- 166.00㎡(50.21坪)
- 建物面積
- 105.35㎡(31.86坪)
- 1F
- 60.13㎡(18.18坪)
- 2F
- 45.22㎡(13.67坪)
■販売価格 (税込) / 29,980,000円(税込)
- 1号地
- 2号地
- 5号地
- 6号地
CONTACT
物件に関するお問い合わせは
川﨑ハウジング 久留米支店
営業時間:午前9:00〜午後6:00







































