区画図
間取り
一邸一邸の個性的なデザインが調和する
美しくモダンなコンパクトコミュニティの誕生です。
美しくモダンなコンパクトコミュニティの誕生です。
土地面積 / 建物面積 / 販売価格


MODEL HOUSE
- 1号地
- 3号地
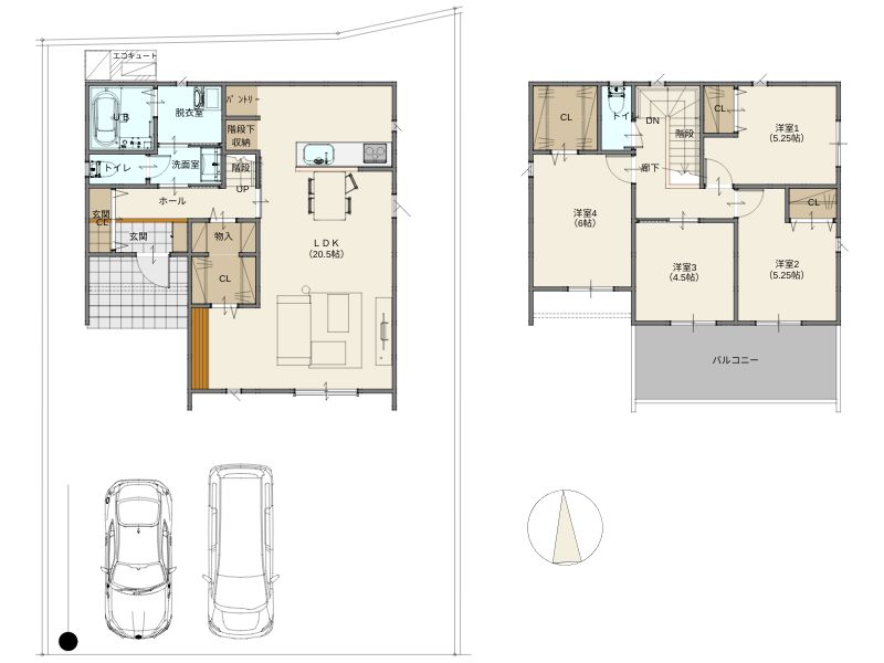
1 号地
4LDK
+
駐車場3台
駐車場3台
- 土地面積
- 171.82㎡(51.97坪)
- 建物面積
- 105.12㎡(31.79坪)
- 1F
- 61.69㎡(18.66坪)
- 2F
- 43.43㎡(13.13坪)
■販売価格 (税込) / 29,880,000円(土地+建物+外構)
水まわりが1か所に集約。毎日の家事がグッとラクに
-
POINT1
- LDKとつながる洋室で、空間の広がりと柔軟性を両立
18帖のゆったりLDKに隣接した4.5帖の洋室は、普段は開放してリビングの延長に。来客時やお昼寝、ワークスペースにも活躍する“つなげて・仕切って”使える万能空間。
-
POINT2
- 水まわり一直線で、家事効率と動線美を両立
玄関から洗面室・脱衣室・浴室までをスマートに集約。帰宅後の手洗いや朝の支度、洗濯動線まで考え抜かれた機能的プラン。
-
POINT3
- 南面バルコニー×ワイドな主寝室で、毎日にゆとりを
2階の主寝室(7帖)は、南向きのバルコニーに面した開放感たっぷりの空間。収納も充実し、心地よい陽光と暮らす上質なプライベートルームに。
- 長期
優良住宅 - エコキュート付
オール電化住宅 - 汚れを落とす
光セラの外壁 - エアコン1台
レールカーテン
(1Fのみ) - 電動シャッター
雨戸(1か所) - 食器洗い
乾燥機 - 玄関
電子錠
3 号地
4LDK
+
駐車場3台
駐車場3台
- 土地面積
- 182.54㎡(55.21坪)
- 建物面積
- 106.81㎡(32.31坪)
- 1F
- 57.13㎡(17.28坪)
- 2F
- 49.68㎡(15.02坪)
■販売価格 (税込) / 30,580,000円(土地+建物+外構)
“欲しい”が揃う、収納上手な住まい。ゆとりも、家事ラクも、しっかり設計。
-
POINT1
- 玄関→洗面直行!ファミクロ経由のスムーズな帰宅動線
家族分の収納を備えたファミクロで、着替えも手洗いも時短&快適。
-
POINT2
- LDKに備え付けスタディカウンターで“学ぶ”も“働く”も
リビング一角にはカウンタースペースを設置。在宅ワークやお子さまの学習スペースに最適。
-
POINT3
- 収納のアイデアが詰まった設計
玄関クローク、パントリー、階段下収納、各部屋のクローゼットに加え、随所に設けた物入れで、暮らしがすっきり整う。
- 長期
優良住宅 - エコキュート付
オール電化住宅 - 汚れを落とす
光セラの外壁 - エアコン1台
レールカーテン
(1Fのみ) - 電動シャッター
雨戸(1か所) - 食器洗い
乾燥機 - 玄関
電子錠
- 1号地
- 3号地
CONTACT
物件に関するお問い合わせは
川﨑ハウジング 久留米支店
営業時間:午前9:00〜午後6:00











































