区画図
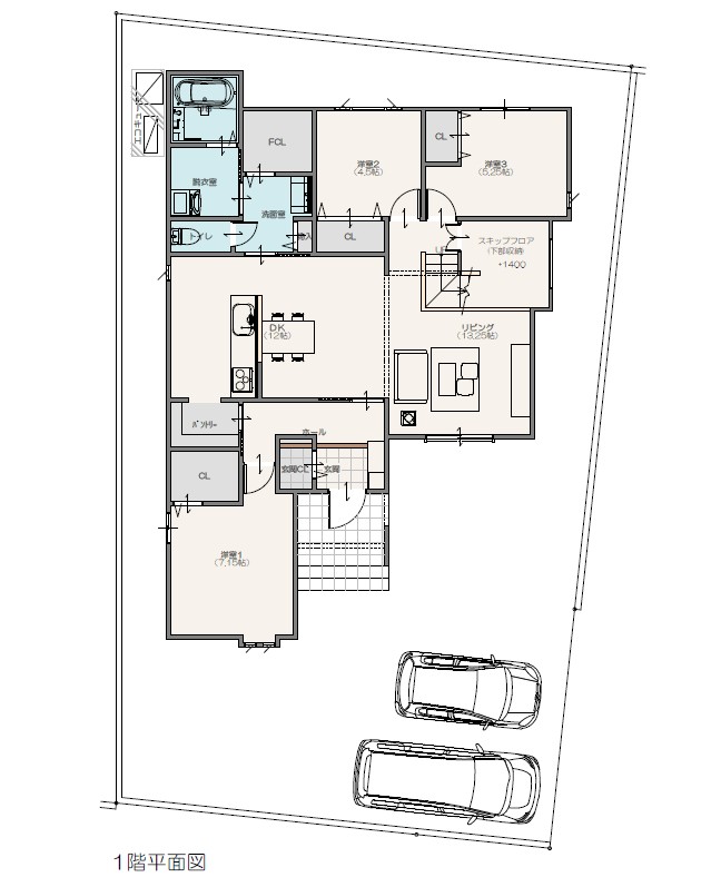
間取り
土地面積 / 建物面積 / 販売価格


MODEL HOUSE
3 号地
3LDK
+
駐車場3台
駐車場3台
- 土地面積
- 234.08㎡(70.80坪)
- 建物面積
- 98.93㎡(29.92坪)
- 1F
- 98.93㎡(29.92坪)
■販売価格 (税込) / 37,580,000円(土地+建物+外構)
スキップフロアと大収納が生む、ゆとりの平屋
-
POINT1
- リビングの一角にスキップフロアを設け、空間に立体感をプラス。
お子さまの勉強スペースや在宅ワークにも使える「こもれる居場所」で、
平屋ながら奥行きのある暮らしを実現します。
-
POINT2
- キッチン横に大容量のウォークインパントリーを配置。
食材や日用品をたっぷり収納できるうえ、買い置きもしやすく家事効率がぐんとアップ。
生活感を見せない“すっきりキッチン”を叶えます
-
POINT3
- 7.5帖の主寝室は玄関ホールの奥に配置し、リビングや子ども部屋から程よく距離を確保。
夫婦それぞれの時間を大切にできる、静かなプライベート空間です。
- 平屋
- 長期
優良住宅 - エコキュート付
オール電化住宅 - 汚れを落とす
光セラの外壁 - エアコン1台
レールカーテン
(1Fのみ) - 電動シャッター
雨戸(1か所) - 食器洗い
乾燥機 - 玄関
電子錠
CONTACT
物件に関するお問い合わせは
川﨑ハウジング 久留米支店
営業時間:午前9:00〜午後6:00






































