TRESTAGE
TOSUKITASYOUGAKKOUNISHI
Plan
無人内見受付中
資料請求
来場予約
受付中
TOP
Plan
区画図・間取り
Location
ロケーション
Design & Innovation
トレステージの魅力
Photo Gallery
フォトギャラリー
Town Planning
街づくり
資料請求
来場予約
区画図
間取り
全区画図を基に描き起こしたもので、実際のものとは異なります。また、ガードレール等は表現しておりません。
土地面積 / 建物面積 / 販売価格
MODEL HOUSE
1号地
2号地
1
号地
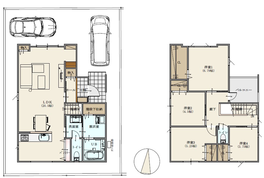
4LDK
+
駐車場2台
土地面積
118.97㎡(35.98坪)
建物面積
104.68㎡(31.66坪)
1F
53.18㎡(16.08坪)
2F
51.50㎡(15.57坪)
■販売価格 (税込) / 33,580,000円(土地+建物+外構)
暮らしの便利がギュッと詰まった、 鳥栖市役所前の好立地
POINT
1
注文住宅並みの豪華装備!
1号地限定オプション仕様
快適性・安心感・機能性、すべてをワンランク上へと引き上げた、特別仕様の建売住宅です。
POINT
2
「ガス衣類乾燥機 乾太くん」や「ハイブリッド給湯器エコワン」「防犯カメラ」など、
通常は注文住宅でしか選ばれないような設備を標準搭載。
POINT
3
広めのバルコニーは、洗濯物干しはもちろん、気分転換にもぴったりの開放空間です
長期
優良住宅
汚れを落とす
光セラの外壁
電動シャッター
雨戸(1か所)
食器洗い
乾燥機
玄関
電子錠
エアコン1台
レースカーテン付き
(1階のみ)
電気とガスの
ハイブリット住宅
2
号地
4LDK
+
駐車場2台
土地面積
118.96㎡(35.98坪)
建物面積
104.68㎡(31.66坪)
1F
53.18㎡(16.08坪)
2F
51.50㎡(15.57坪)
■販売価格 (税込) / 32,980,000円(土地+建物+外構)
鳥栖市役所徒歩1分。暮らしの真ん中に住まいの理想を。
POINT
1
2階には4つの洋室を配置し、家族それぞれのプライベート空間をしっかり確保。
ライフスタイルの変化にも柔軟に対応できる間取りです。
POINT
2
玄関収納に加え、階段下にも収納を設けて、生活感を感じさせないすっきりとした空間に。片付けやすさが暮らしの質を高めます。
POINT
3
鳥栖市役所の目の前という恵まれた立地。徒歩圏内には市役所をはじめ、郵便局や銀行などの公共施設がそろい、手続きや生活の用事もスムーズに。
1号地
2号地
【トレステージ鳥栖北小学校西】物件概要 ●所在地/佐賀県鳥栖市宿町1110-8他 ●交通/JR鹿児島本線「鳥栖駅」自転車約8分 ●地目/宅地 ●用途地域/第一種住居住居地域●建ぺい率/60% ●容積率/160% ●道路幅員/北側(公道):約4m ●雨水/側溝排水 ●電気/九州電力●ガス/都市ガス●上下水道/公営上下水道 ●総区画数/2区画 ●販売戸数/新築一戸建:2戸 ●土地面積/1号地:118.97㎡/2号地:118.96㎡ ●建物面積/1号地:104.68㎡/2号地:104.68㎡●販売価格/3298万円~3358万円 ●完成時期/2026年3月上旬 ●入居時期/未定●取引態様/売主
SNS
VIEW ALL
Room Tour
VIEW ALL
CONTACT
物件に関するお問い合わせは
川﨑ハウジング 久留米支店
0120-958-522
営業時間:午前9:00〜午後6:00
資料請求
来場予約